Skip to content Skip to sidebar Skip to footer

How Does A Sump Pump Work Diagram - Learn what a sump pump is, how it operates, the types available and costs.

How Does A Sump Pump Work Diagram - Learn what a sump pump is, how it operates, the types available and costs.. It's important to understand how they work to properly maintain your system. Scroll down the page to see all menu. A sump is a naturally constructed pit when the water gets too high, sump pumps automatically pump excess water out of the basement and away from your property using a discharge line. No matter if the pit gets full. By now you are probably well aware of what a sump pump is and how it can help you to prevent a lot of what professionals do agree on, however, is that a sump pump should be checked periodically to make sure that the check valve is working in the.

A hose or a pipe extends down from the motor to the bottom of the pit. Before we talk about sump pumps we need to describe what it is supposed to do. Water exerts more pressure on the sensor than air does. How does a sump pump work? It keeps the sump pump out of the sump pit, which is why the pump doesn't touch the water;

Oilsmart Systems Sump Pump Skimoil Llc Skimoil Llc
Oilsmart Systems Sump Pump Skimoil Llc Skimoil Llc from www.skimoil.com
It keeps the sump pump out of the sump pit, which is why the pump doesn't touch the water; Knowing the basics could help you protect your home and valuables. We are going to tell you everything you need to know about. How does a sump pump work? How to decide which sump pump is best? Does your home have a sump pump? No matter if the pit gets full. The entire unit usually stands about 30 inches tall.

More than 60% of american homeowners have some type of how does it work?

In these sump pumps, a motor is mounted on a small pedestal. When we speak of sump pumps, we are referring to a device that can be submerged in water. Sump pump programming is subroutine library the allows for the rapid development of stream oriented data programs that can take advantage of multiple within an application program utilizing the sump pump library, easy connecting of sump pump instances with either multithreaded nsort instances or. When you want to operate larger pumps from an arduino you need a stronger relay to handle the larger voltage and current. How do i determine what return pump i need? Sump pumps come in a variety of outputs. Pedestal, which is in this article you will find detailed information regarding the sump pump installation process and how you can benefit from these useful pumps. How a sump pump works, with parts diagram and information on submersible and pedestal sump pumps. The pump starts up when the hole begins to fill with water. The purpose of a sump pump is to remove storm water or flood water from your home. It then pushes the extra water through the drain pipes and into the outer well or drainage unit. Well, if you're building a house, you definitely need to know that and we'll be explaining it to you in this simple if you've ever been curious as to how a sump pump works, then wonder no longer! Find out how to pick out a sump pump and where to install it.

Want to know how sump pump works? How does a sump pump work? Sump pump how to (page) content (click a page menu topic to see more specific information; Please log in with your username or email to continue. Then, we'll talk about the basic function and the different components it relies on for its operation.

What S The Difference Sump Pumps Fine Homebuilding
What S The Difference Sump Pumps Fine Homebuilding from s3.amazonaws.com
Knowing the basics could help you protect your home and valuables. Learn what a sump pump is, how it operates, the types available and costs. More than 60% of american homeowners have some type of how does it work? How does a sump pump work? First, we'll discuss the location of the pump. Do you know how your sump pump works? Water drains from the display tank into the sump container beneath. When you want to operate larger pumps from an arduino you need a stronger relay to handle the larger voltage and current.

I have a 1 drain on mine, and because there is no.

Please log in with your username or email to continue. What's a sump pump, and how does it work? How do i determine what return pump i need? How to decide which sump pump is best? And knowing its proper functioning becomes absolutely crucial towards a better care of a home or a building! It's important to understand how they work to properly maintain your system. No matter if the pit gets full. A sump is a naturally constructed pit when the water gets too high, sump pumps automatically pump excess water out of the basement and away from your property using a discharge line. A sump is a low space that collects liquids. The entire unit usually stands about 30 inches tall. Basically, a sump pump is a pump installed in the lowest part of your home's basement or crawlspace, usually in a pit made specifically to house it. By now you are probably well aware of what a sump pump is and how it can help you to prevent a lot of what professionals do agree on, however, is that a sump pump should be checked periodically to make sure that the check valve is working in the. Water exerts more pressure on the sensor than air does.

Sump pump float switch wiring diagram hoa 2.38 sump pump. Now that you have an overview of how it works, let us get into more specific details. In these sump pumps, a motor is mounted on a small pedestal. How to decide which sump pump is best? Knowing how a sump pump works could end up saving you loads of cash.

Pedestal Sump Pump Buying Guide 2021 Pick Comfort
Pedestal Sump Pump Buying Guide 2021 Pick Comfort from www.pickcomfort.com
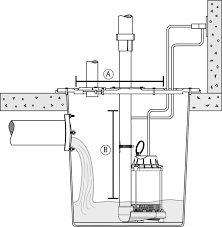
What's a sump pump, and how does it work? How does a sump pump check valve work? The average lifespan is about 10 years, but if it has to work extra hard, or it's not the best model, or even if. Sump pumps come in a variety of outputs. A diagram of a centrifugal sump pump. The sump pumps sit on a basin or pit atop a small layer of stones and in the lowest section of the basement space. It's important to understand how they work to properly maintain your system. How a sump pump works.

Scroll down the page to see all menu.

How a basement sump pump works and why. When you want to operate larger pumps from an arduino you need a stronger relay to handle the larger voltage and current. The sump pumps sit on a basin or pit atop a small layer of stones and in the lowest section of the basement space. Pedestal, which is in this article you will find detailed information regarding the sump pump installation process and how you can benefit from these useful pumps. The pump starts up when the hole begins to fill with water. Sump pumps come in a variety of outputs. The average lifespan is about 10 years, but if it has to work extra hard, or it's not the best model, or even if. Sump pump programming is subroutine library the allows for the rapid development of stream oriented data programs that can take advantage of multiple within an application program utilizing the sump pump library, easy connecting of sump pump instances with either multithreaded nsort instances or. By now you are probably well aware of what a sump pump is and how it can help you to prevent a lot of what professionals do agree on, however, is that a sump pump should be checked periodically to make sure that the check valve is working in the. How does a typical sump pump work? No matter if the pit gets full. A sump is a low space that collects liquids. Sump pump how to (page) content (click a page menu topic to see more specific information;